集装箱建筑应用研究(产品篇)
By Anonymous (not verified)
岁友空间在接触特色小镇建设、新农村建设、田园综合体打造、房车露营地建设、旅游地产开发、农庄庄园建设、民宿建设与改造及集市式展销等客户时,发现客户对建筑空间交付时间效率和环保有刚性需求。这类客户时间就是成本,时间就是利润。一个项目能否提前开业对一个项目来说就是先机和利润。特别是面对一些政府政绩类项目的时候。 /hVGFYVicye2ULLVJj3z12BnmUApTbtQ6msnibDjFNYWD1uyRwUu0d6Uj5bbfEk6952101uiajGVvlFxpia1snXPOyA.jpg)
集装箱建筑在时间效率、保环效应、环境的适应性和全寿命周期等方面具有突出优势。它的这种特性符合文旅类客户的需求,受到了广大设计师和业主的青睐。同时,它也符合装配式建筑标准化设计,工厂化生产,一体化装修,装配式施工及信息化管理的特征要求,让它具备了建筑产品化的前提和基础。 /hVGFYVicye2ULLVJj3z12BnmUApTbtQ6mHw30JepMLVcAfBEDrkSVz7zMeHMiasfwuwTibRccxKfOqFFOfzKenZ0Q.jpg)
下面岁友空间小编携手岁友空间全国57家分布式生产基地和12家设计工作室提供的资料,结合自身集装箱建筑产品开发及项目应用实践,整理了集装箱建筑产品化的相关资料,以期让设计、业主、行业同仁更好的选择、交流与分享,更好的提高认知,促进行业发展。
NO.1 集装箱建筑产品化逻辑
集装箱建筑产品化万变不离其宗,无论如何变,都离不开及集装箱建筑结构、材料、内外围护、门窗、屋顶、地面及附加功能等系统的组合创新。这种体系及相应不同材料应用,诞生出不同的建筑产品形态。
/hVGFYVicye2ULLVJj3z12BnmUApTbtQ6mxgokVspEY4VDribibITKF1GtUwpnV10pibbvEGqwj32DP8LEWp9B3xVxA.jpg)
在集装箱建筑体系及材料应用的基础上,不同的建筑空间功能化单元组合,如厨房、卫浴、整体橱柜、设备设施、智能家居等,也能打造出能满足不同应用场景的建筑空间。 /hVGFYVicye2ULLVJj3z12BnmUApTbtQ6mF2cXNteOqAW3bIvGaibibZjmwNPasY8DI2FPkicE8HPWUeHX1QFY2SZzw.jpg)
同时,不同的应用场景,如商业、住宿、办公、展览展示及附属配套等不同的需求对集装箱建筑的空间布局都是不一样的,这也由此诞生不同的建筑产品业态。 /hVGFYVicye2ULLVJj3z12BnmUApTbtQ6mpWzEbpianc9TkhVKKq3IZVz10rgiaM4yYAFNRTzZ1dyoRiaspTgax4zOw.jpg)
/hVGFYVicye2ULLVJj3z12BnmUApTbtQ6mIw0sKnaZMJEUyLH9XN2xyWfSEcrJiaNqkRoIK9IhqhXPzrZiblJhjMhw.jpg)
/hVGFYVicye2ULLVJj3z12BnmUApTbtQ6m8TAEmiavItvknxicAy3ianG6dl3LTibogeR21co0ybDXdc36TkAeWd5pgQ.jpg)
NO.2 单元化集装箱建筑产品
单元化集装箱建筑产品即遵循集装箱的模数,只通过立面材料、窗墙比等创新形成的单元性建筑产品业态。
/hVGFYVicye2ULLVJj3z12BnmUApTbtQ6mLhhxYOOp6y2PNbEhFCjkibkQsPvqoE6BpGBlpRuFSErVpsoDGe9a8gg.jpg)
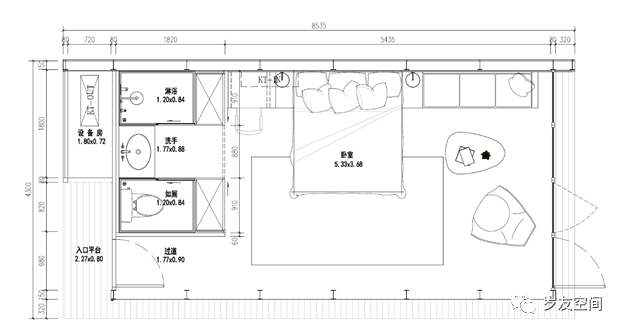
这是集大成与岁友空间合作的一款集装箱类的旅居建筑产品SYG001。产品基本配置参照三至四星级酒店要求并结合了度假酒店的特点,搭载了大面积落地窗,干湿分区的一体式卫浴及大面积露台,且均采用环保可回收材料。产品硬装、卫浴、室外露台及休闲凉亭全部在工厂进行整体总装或模块化生产并运至现场进行组装,所有组件全部采用锁合结构无需焊接,安装便捷。产品入户门安装了最新的智能门锁系统及考虑到客户安全心理的安防系统,客户可根据需要选配地暖系统。 /hVGFYVicye2ULLVJj3z12BnmUApTbtQ6myU693Up26wKCRwfBNB1uzdaia2Bnt6DDlfiaCYuYQR8QeEh06aNCjGOg.jpg)
/hVGFYVicye2ULLVJj3z12BnmUApTbtQ6m3FDh8R7WfknQkzwazL8lvt5CKCwicwEIcYo81j6LaZIuFYnDUicRaDSg.jpg)
集装箱类的旅居建筑产品SYG-002 /hVGFYVicye2ULLVJj3z12BnmUApTbtQ6mp1rKa0U643knHHGR1CCn2PCqRVl3toVkySnRTbibygRlZDiaXL5zLoUA.jpg)
/hVGFYVicye2ULLVJj3z12BnmUApTbtQ6mbmM43HysXvB2F1ePgdsCiazpyhicysap5S6XshBibROkNXCnFgrdf4vBA.jpg)
集装箱类的旅居建筑产品SYG-003 /hVGFYVicye2ULLVJj3z12BnmUApTbtQ6mfm3rjmhdosK9FZsxufsK7HEXoa7Bpl8hJCYC0GSF8ZkANJFOcXezQw.jpg)
该产品定位于中端旅游度假市场,基本配置参照三至四星级酒店要求并结合了度假酒店的特点,产品搭载了大面积落地窗,干湿分区的一体式卫浴及大面积露台,且均采用环保可回收材料。产品硬装、卫浴、室外露台及休闲凉亭全部在工厂进行模块化生产并运至现场进行组装,所有组件全部采用锁合结构无需焊接,安装便捷。产品入户门安装了最新的智能门锁系统及考虑到客户安全心理的安防系统,室内安装了冷暖空调,客户可根据需要选配地暖系统。
该产品由集大成和岁友空间呢提供全程技术支持,联合成熟配套供应商,提供全周期服务。产品具有集成度高,品质可靠,可灵活选配及定制,可快速移动,制造时间短,全周期环保等优点,作为度假屋适合于各类景区及度假区。 /hVGFYVicye2ULLVJj3z12BnmUApTbtQ6mutroEev9k5Qr6tlfIMVoBc7rh971MS3XhxYRgOfctBMdxoV2Ab8uTQ.jpg)
/hVGFYVicye2ULLVJj3z12BnmUApTbtQ6mgnrajMbDOUJdVzojLn56Dfn7MqiaWfZfvX98a0uT6JSy0u6iakduK50w.jpg)
岁友玮莱月光宝盒SYG-004 /hVGFYVicye2ULLVJj3z12BnmUApTbtQ6mIUyyQTibshzBzIicdd1muvktt0LMoiaNbBJFNFxicibKHhQDbgEhszyk1Lw.jpg)
/hVGFYVicye2ULLVJj3z12BnmUApTbtQ6mW30CywyuFx0c8Brb90YrxFvgpGSyresetVmu3PG2nTdERYuVgpj87w.jpg)
/hVGFYVicye2ULLVJj3z12BnmUApTbtQ6mUEc80gPurfznUxRoVxkU8TnPGufbZRZE0WqgywOLGWIicvqacicibrW4g.jpg)
岁友米墅E3SYG-004 /hVGFYVicye2ULLVJj3z12BnmUApTbtQ6mxWRricNfic3fjyOo7syF65zPhIiaia0MtVs2k6LtVJKIQ9gcumTiccoTeFg.jpg)
/hVGFYVicye2ULLVJj3z12BnmUApTbtQ6m2OanZp6hOdhsHIwsNakQ1fg1pN5nzhV01gpN6NVKWETVLUZRkfIa3w.jpg)
/hVGFYVicye2ULLVJj3z12BnmUApTbtQ6mO5Voqr6HGmBKPS08xicR6U4ZWMxPRp5hnxib3ZYTWU7MbNzVnA73lVTA.jpg)
岁友林隐旅居建筑产品SYG-005 /hVGFYVicye2ULLVJj3z12BnmUApTbtQ6m7pibel4ssIoDKP9oj1rHGSePpA5tfsRREaG1Yp6ibGtNGGGkNWbByF1w.jpg)
/hVGFYVicye2ULLVJj3z12BnmUApTbtQ6mbzlic1RxVyyIdNyGWLoTbo514NGtg71ypa6k0Vdk2eBt1aFYtPWWg0w.jpg)
岁友厢聚旅居建筑产品SYG-006 /hVGFYVicye2ULLVJj3z12BnmUApTbtQ6mZbjIHy9P8LYPdB6ksyUqYMXbCE43JX5nVgAQiaCInW6mpzOt9jlSmww.jpg)
/hVGFYVicye2ULLVJj3z12BnmUApTbtQ6mpncQRicsSMCP2fk2M84Kn6NS4mLZA37iccA7WpvbasAiaBvIKkyEBoZEQ.jpg)
/hVGFYVicye2ULLVJj3z12BnmUApTbtQ6m9OibsRwjTocaQHa8DTicHPROzrSVDZ51TN6vYQEX7Wu2FKNWp4pFa39A.jpg)
岁友玲珑屋旅居建筑A型产品SYG-007 /hVGFYVicye2ULLVJj3z12BnmUApTbtQ6mkMicQnBVwzu9hbrsrqN8S3mCZLFr6JFJ0QOyAVQ7zgj2593dPrJCM3Q.jpg)
岁友玲珑屋旅居建筑B型产品SYG-007 /hVGFYVicye2ULLVJj3z12BnmUApTbtQ6mjep8psj6xC7FhYddVKpmpOynY1cic535vHUn0ic6GZpEmE8g89ZgBaQw.jpg)
/hVGFYVicye2ULLVJj3z12BnmUApTbtQ6mgXicwUiaAkZAiabX7mx6icP8Nfticv6KNyiaSIVkVRv1SJ7Pqe1MDbR1myng.jpg)
/hVGFYVicye2ULLVJj3z12BnmUApTbtQ6myH8pUcqxzicnX9Zpo8hw6fcPDcr4PryowIKp93ftl7hnTibMniaYfvoicg.jpg)
岁友玲珑屋旅居建筑C型产品SYG-008 /hVGFYVicye2ULLVJj3z12BnmUApTbtQ6moWvm87lria0yeEIPzQG5g8hd5xccONE451rlxGgLQEZQt8apicolicuiag.jpg)
岁友简悦建筑产品SYG-009 /hVGFYVicye2ULLVJj3z12BnmUApTbtQ6mjibOiaOJVbb6AxAbcaianlb4HyiaL6IKMeMekEdK8wCfTVB5q3pkbZNibcA.jpg)
营地型旅居建筑产品SYY-001 /hVGFYVicye2ULLVJj3z12BnmUApTbtQ6mAXbkOLx13pj2UnmGbkgtdvSGDwuiccHboVJ8hrSVVh7tic84Hjia3dpIQ.jpg)
营地型旅居建筑产品SYY-002 /hVGFYVicye2ULLVJj3z12BnmUApTbtQ6mSCGFB9ENLmAB1d7ttibicVibezlxZ9EI1AT5HOkgT87Zx3vAyUibFAWAeg.jpg)
营地型旅居建筑产品SYY-003 /hVGFYVicye2ULLVJj3z12BnmUApTbtQ6muhzaL7icfOAkLALZoTcfibmS0guYNCh8geHtvtDnOibSJ8WYLAWJKjIJg.jpg)
岁友创意集装箱厕所产品SYC-001 /hVGFYVicye2ULLVJj3z12BnmUApTbtQ6mFFLSM8k7A8FMSHiaMictvAictsppq8D1rjabOOHFSSmObantJ1dk1Elog.jpg)
NO.3 组合化集装箱建筑产品
组合化集装箱建筑产品即通过与屋顶材料、立面材料及箱体之间的叠合、抽屉式组合形成新的建筑产品业态。 /hVGFYVicye2ULLVJj3z12BnmUApTbtQ6mLjdDUgknVVlEC2xlJr639HibQ6ooibSYDsHicM6tgevjkg9WLlUbOE6Rw.jpg)
岁友遥皓-沃阁系列度假屋·B户型 /hVGFYVicye2ULLVJj3z12BnmUApTbtQ6mRNlWMYxia7u3ow2bpjgoh9KJh6NBSCKGKZKpobENPVmXyhMIoUa2Myg.jpg)
/hVGFYVicye2ULLVJj3z12BnmUApTbtQ6m2qSo75kntOm560sDDQeeq3vz1kvo33zULjGiaicCJ4TxAbmYUMBbJfibg.jpg)
岁友遥皓-沃阁系列度假屋·D户型/hVGFYVicye2ULLVJj3z12BnmUApTbtQ6mqibndgia2nSichkvG1X47pribic5uRughOibYbNOgtBGYOxpmWocnsJpD9ow.jpg)
/hVGFYVicye2ULLVJj3z12BnmUApTbtQ6mgiakiaOgvCLvSgaccQNKfKcwZbKs1UH90HiaLkmFSnauibYgO4fPibYhCmQ.jpg)
/hVGFYVicye2ULLVJj3z12BnmUApTbtQ6mNHRPmLicvR0H0QIhvicVzpbedaVeg9t068yJIwXq9EwuuiaUYxbXM4oUQ.jpg)
/hVGFYVicye2ULLVJj3z12BnmUApTbtQ6mSKkgtxgYf0NcicD67eWJibic2kmmzZlmDEQWWSCGYO8dliazWHPrHbWakA.jpg)
岁友IMBOX-X320 /hVGFYVicye2ULLVJj3z12BnmUApTbtQ6mibzun5DhC9c3Zc5iayzI9TMdA1iaicKVLHWL2EnzCV7jomtU3XMySbhY5g.jpg)
/hVGFYVicye2ULLVJj3z12BnmUApTbtQ6m7DnCCyNzEGAdiao79ib1DCmVCS40SicQeFd6cF4XGq8to7wz7XK8OAtBQ.jpg)
岁友崖居系列度假屋·A户型/hVGFYVicye2ULLVJj3z12BnmUApTbtQ6morCHroiaTMMAj3FPTzKKC4dIhlpgAsw2icrSic5h60B4AbiaaAL1JK3W2Q.jpg)
/hVGFYVicye2ULLVJj3z12BnmUApTbtQ6mGgwxNrf13FVqArftp7u8ygfrgVia6qxPAIOfIicAclIN97OBFU0G8vzg.jpg)
/hVGFYVicye2ULLVJj3z12BnmUApTbtQ6myAd6zf42v2Nl30GU5CK3ef9iaaY0ezyXwh4kicPOqqnqtabR2PStSnIw.jpg)
/hVGFYVicye2ULLVJj3z12BnmUApTbtQ6mAfDiaibSXfMAfLLib1UnnRI2KV7CTia5mcKthXcZ6KWQGtp0H2oIE9IOoQ.jpg)
岁友崖居系列度假屋·B户型 /hVGFYVicye2ULLVJj3z12BnmUApTbtQ6mAreMicJRO2xJPYNomdRd6I3zTo9jsC0fyyxGGaFGic4TsowgvNUBAZJA.jpg)
/hVGFYVicye2ULLVJj3z12BnmUApTbtQ6micqeuAoXF2Engcdjw6K7HibcEZzpqAHrBtZOtS5CG7D7TdnF2icpQJW8Q.jpg)
/hVGFYVicye2ULLVJj3z12BnmUApTbtQ6m0jukL8l62hs9sf7zoOkU7gd9tia7tL3BZoyQa3QWkHicpQN0GecOvlWA.jpg)
岁友-千城绿界帐篷客SYP-001
/hVGFYVicye2ULLVJj3z12BnmUApTbtQ6mH99oWXq1Qdm8oOkkmjF1F2GxMvKyibsTsZqHxG0T6nxia0BJuYmbIv6w.jpg)
/hVGFYVicye2ULLVJj3z12BnmUApTbtQ6mkwmp4FWriaB2fWmPTLhTVjYol9stAIJNO8qbNnv7iagFWDLcLzmXkcFw.jpg)
岁友-千城绿界帐篷客SYP-002 /hVGFYVicye2ULLVJj3z12BnmUApTbtQ6miaTPiaCVE1sfjb09v23ILF7cN2ibKuEbs4NL1Uy1YaicctxGU2E7GtJrLA.jpg)
/hVGFYVicye2ULLVJj3z12BnmUApTbtQ6mwJC9lIkqr9LKS8y9G4o6SaA5kStO15libibCDz9mK2ibDn9Yh85LWdDJw.jpg)
岁友-千城绿界江南帐篷度假屋SYP-003 /hVGFYVicye2ULLVJj3z12BnmUApTbtQ6m1SBArndhUmRKDY92f5p2HQlB6CjLQpbvlrwW4oPficmR6AicFtEjaXJA.jpg)
NO.4 跨界创意集装箱建筑产品
跨界创意集装箱建筑产品即通过建筑的一些内外立面材料及元素的创意组合,形成一种特定跨界场景下、主题性很强的创意建筑产品形态。这类建筑产品比较适合在类似太空探索、儿童主题乐园、模块化种植等领域应用。 /hVGFYVicye2ULLVJj3z12BnmUApTbtQ6mkRKDNYal5HZGBMJKCVR8EXBcVwIyR5hp0BT6drdSvHchWwmK3DpotA.jpg)
岁友&集大成星球系列-金星舱 /hVGFYVicye2ULLVJj3z12BnmUApTbtQ6mRL2TlDqKuBzymGfb10raZATR31rxuXbCU3KSUTvnwnJ7UQmicFxt2Qg.jpg)
/hVGFYVicye2ULLVJj3z12BnmUApTbtQ6miaaHrqdWm9colzC5DPLcF5kVEnic9icNRTln6DSHTx6eSe8pY2LycUO5Q.jpg)
岁友&集大成星球系列-火星登陆舱 /hVGFYVicye2ULLVJj3z12BnmUApTbtQ6mXiayaTE6uyssGZ3HqcdLazLia61SBevVxH8vtdK7o7aOtPicdibHsLYQpg.jpg)
/hVGFYVicye2ULLVJj3z12BnmUApTbtQ6mf9F4C9sibq4ib42Vh5FLa1QibXDxRVKm5kXljBIwFpmaoPd24quzleEng.jpg)
/hVGFYVicye2ULLVJj3z12BnmUApTbtQ6myMkicvA4Ijr8VicH5dgYibZ7cCGQW1hObWaZS8rYRZY9xlFo9kiayLPN1Q.jpg)
岁友星球系列-火星登陆房车 /hVGFYVicye2ULLVJj3z12BnmUApTbtQ6mDXriaMovvZpZD01PQe5DLaiaUvY1qtqp81icGibpicoEglrRsnHXhGQsDvg.jpg)
/hVGFYVicye2ULLVJj3z12BnmUApTbtQ6m00vPqozzqicSuCubPZ5kORnWgI8KJRVRu1QKNSmZibLNPQEy4ibuP6I1g.jpg)
岁友&米格方舱-集装箱游泳池 /hVGFYVicye2ULLVJj3z12BnmUApTbtQ6mIrcAnyNTCezN7EFs5dtp12SianiaBp30990EnPS2cCzGP1jkSOsicO38g.jpg)
/hVGFYVicye2ULLVJj3z12BnmUApTbtQ6mj17EhVynSx89kVpl9ZbAh6LIF1icHbXtm4ajLkJgiatl0mksbN8sKoiaQ.jpg)
/hVGFYVicye2ULLVJj3z12BnmUApTbtQ6mkgwPYlwUDdqzgBf21dJjgCZKYDAe6aup0icLgWN7MSnGu6MGl3KucUA.jpg)
/hVGFYVicye2ULLVJj3z12BnmUApTbtQ6mUia780Nd0v27PqCxCCiaTjiacsqHylmbQ7w1icW97PoicRhA8icwelkWU7sQ.jpg)
/hVGFYVicye2ULLVJj3z12BnmUApTbtQ6m6OticaCLnvzdBcZ7wQYJVZcdIDUayG56PmNUcJTjg6hHLiaicHCFiapLibg.jpg)
/hVGFYVicye2ULLVJj3z12BnmUApTbtQ6moGA1eluyNwRwXdTqZAKLQpX4g47D86kjnIgUy5oSN3EptZpqKlvyuQ.jpg)
/hVGFYVicye2ULLVJj3z12BnmUApTbtQ6mOhMsZF1VLc6tklKJMLSbyvzzcFLzsg6c5Veoiblr0jVaiaMheBkN73yw.jpg)
/hVGFYVicye2ULLVJj3z12BnmUApTbtQ6mpibTSUT1osdibtWMIfXaGNpeWAXU5eNTPxYUHdVgseGPBeic1fw7rhicNg.jpg)
/hVGFYVicye2ULLVJj3z12BnmUApTbtQ6mX01vicOV9xCdA5fDNuSo6zp69LUE9dBLh6mdxeQTK8dcRskRVItcYiaQ.jpg)
岁友&集大成-集装箱植物种植工厂 /hVGFYVicye2ULLVJj3z12BnmUApTbtQ6m4nUS3xk8xf3rWRJCeUm1mMPsYgHAtaqvN0ewjp2VGm55sxYRFicS1MQ.jpg)
/hVGFYVicye2ULLVJj3z12BnmUApTbtQ6mpm8XB95JUl8Xm3ZWwKbgAQBgibeXkK8ZtntibzQ2METkZZiaJcITenKAg.jpg)
/hVGFYVicye2ULLVJj3z12BnmUApTbtQ6mGfIJtx7lTWZiaQlVZM4qvJhciauzuhb6zAhvKsYKCSqX8uNhBZaDkPOA.jpg)
/hVGFYVicye2ULLVJj3z12BnmUApTbtQ6mFlNzVwt48TcVG1aMx5BNSxJLHYtJvuEd61yjtjZVVTXZQQMEibdoN7g.jpg)
/hVGFYVicye2ULLVJj3z12BnmUApTbtQ6mbqibaNyTppx3EQ3Sp7CSRRdpLWly5gvqjicPqOuQQ2srs9lLeOe1sfbw.jpg)
岁友集装箱生态种植主题餐厅组合系列产品 /hVGFYVicye2ULLVJj3z12BnmUApTbtQ6mBiaEgwexrq7cOtVYDh6uKGGv6meVaDRRMF9TARTm6Q1Jd4GTFaVbMfw.jpg)
/hVGFYVicye2ULLVJj3z12BnmUApTbtQ6mvChDVmtWQMwgYML12qdUIWuaffENzUnVnB86eoEjY0mtfUKnfP2BuQ.jpg)
/hVGFYVicye2ULLVJj3z12BnmUApTbtQ6mlRyGzEsA9FiaGF48AkzPI4d66RrhUw6nT4kcYqkVHWG6dX4flJBwruQ.jpg)
/hVGFYVicye2ULLVJj3z12BnmUApTbtQ6mSTqpYfGfqSoyDBgvUzKRRjTsbpv957vicmpYib9adDdLkiaCAx6bKEQCw.jpg)
NO.5 智能化集装箱建筑产品
智能化集装箱建筑产品即通过液压、传动及智能化等配套设备设施的融入,形成比较智能化的建筑产品业态。这种智能化集装箱建筑产品可以广泛用于咖啡吧、展览展示、广场集市、临建空间等领域。 /hVGFYVicye2ULLVJj3z12BnmUApTbtQ6m34Qslib0GBgA3maBaAgVIrLHnNF0VySPQF5B0pCbOR5ylsKj3u5Xkvw.jpg)
/hVGFYVicye2ULLVJj3z12BnmUApTbtQ6mQYniaibHQCdYI3oN6Y14qwF5MhByBJaLuE9UVda4AmV1ByKSX7ujjeYQ.jpg)
/hVGFYVicye2ULLVJj3z12BnmUApTbtQ6mGwKEdrvQYkLUHLgoOtatI0SSe3od7HRRcQZP5UWxx30GScR3yySdmA.jpg)
/hVGFYVicye2ULLVJj3z12BnmUApTbtQ6mwfSI8lVibkwYXXibuib94j82icOSu6RT1QFKicop2LORHjrUt33s5kqiahQg.jpg)
/hVGFYVicye2ULLVJj3z12BnmUApTbtQ6madibesNnoM1ydh55TXfP5qZXk9IZOmCicCp0xSR1XDcgPl671HNwqf4A.jpg)
/hVGFYVicye2ULLVJj3z12BnmUApTbtQ6mwnxyAPFhxSgCLciaKrmDHrfWQRxAwj4gZVckrRhAldgzhsKTONHia1VQ.jpg)
/hVGFYVicye2ULLVJj3z12BnmUApTbtQ6mZPcgmp6dq7G4WEsKuibKYz2AtRriaEk38cbJyaBvoUPgpfoofoP8nLkw.jpg)
/hVGFYVicye2ULLVJj3z12BnmUApTbtQ6mSMdTCQ9St5rXWxpNBVAz7GOaAISKLUfpia2LiabqW2fdrH5OUaTmibicbg.jpg)
/hVGFYVicye2ULLVJj3z12BnmUApTbtQ6mlcysziaJYHDyK7hfIrBDllmoZ9u6eWrmgjM5r5y2cEo41wicicGHSEMPw.jpg)
/hVGFYVicye2ULLVJj3z12BnmUApTbtQ6mrN1Mby8SZEx22QWibibD7E6biaic5FHicZZalPVh1kFZARhsEJMUAqXbHJQ.jpg)
/hVGFYVicye2ULLVJj3z12BnmUApTbtQ6mJzpDPqMEseV2jrXeKVWx2iaiaJuBON6ibZB0gbGmgUgwKa8gTHHBUNlfQ.jpg)
/hVGFYVicye2ULLVJj3z12BnmUApTbtQ6mpu8eJczJmrD02dbENL8UoJZfrq40xMclBrbXyxvYzLHiax9wDSktzMQ.jpg)
/hVGFYVicye2ULLVJj3z12BnmUApTbtQ6mF6BeZ6cMoD9qkvBeSUYRCS3yuP15COVQUmYphicRcXYIqpL2vVCxpyQ.jpg)
/hVGFYVicye2ULLVJj3z12BnmUApTbtQ6m76BC1JL1YBkrJ0BticNskIibZwHuQibf50wTEicC9d5oHngkmtVfsXRhow.jpg)
/hVGFYVicye2ULLVJj3z12BnmUApTbtQ6mBgggpYsfoibYWGNfrEtUFqTZanIfPhiavYkHFw9gQFpys70HajWleDEA.jpg)
/hVGFYVicye2ULLVJj3z12BnmUApTbtQ6m0Y13icFTciaP5TKFYbnzam4PhN5gkIY3CODvBuoiczuI7Scmp2j52R3mg.jpg)
/hVGFYVicye2ULLVJj3z12BnmUApTbtQ6mdmkic5XxUhoME8OQJGRfePwKiafyl2EDVzeicEsUAkmYVicNdQL9CjEtHA.jpg)
/hVGFYVicye2ULLVJj3z12BnmUApTbtQ6mZLmlGNaRibaDnjUicZoCicV80G7PJIl1Y4hf23jXeiaWCq0PQicbdf6yic5Q.jpg)
/hVGFYVicye2ULLVJj3z12BnmUApTbtQ6mdicduEBTBLFPFAoJHdFKERw669dwvicell3wkDamNPhVTaibtnMg9m4GA.jpg)
/hVGFYVicye2ULLVJj3z12BnmUApTbtQ6mvZ6JkKZxwSmcCtXbYiaBxa6Y0owgSfqMSfKd9ic0ZADp9yQl2b0sfeJA.jpg)
NO.6 结语
只有让集装箱建筑产品化,根据不同应用场景形成方案化,这才能让集装箱建筑走得更远,走得更有可持续性。同时,集装箱建筑的发展将大大促进装配式建筑的发展及认知!岁友空间作为我国低层装配式建筑综合服务商,期待更多志同道合的低层装配式建筑生产基地和设计工作室一起加入运营生态圈,为客户提供更多好的产品及方案!岁友空间,总有你想要的空间!
/hVGFYVicye2WE2a0dTKibF1VfH18WzMLSwmwFcibqmTKFibvnREzjq0AIr7whcceUQdc1Yicj5UlweMjqicLRbibZ2zNQ.jpg)
备注:本文来源于岁友空间、合作生产基地、设计工作室及网上案例资料的整理和优化,如有转载版权问题或者文字错误,请第一时间通知我们,我们会尽快处理。
▼更多精彩图文及建筑产品,请点击左下角”阅读原文“即可查阅。
/hVGFYVicye2ULLVJj3z12BnmUApTbtQ6msnibDjFNYWD1uyRwUu0d6Uj5bbfEk6952101uiajGVvlFxpia1snXPOyA.jpg)
/hVGFYVicye2ULLVJj3z12BnmUApTbtQ6mHw30JepMLVcAfBEDrkSVz7zMeHMiasfwuwTibRccxKfOqFFOfzKenZ0Q.jpg)
/hVGFYVicye2ULLVJj3z12BnmUApTbtQ6mxgokVspEY4VDribibITKF1GtUwpnV10pibbvEGqwj32DP8LEWp9B3xVxA.jpg)
/hVGFYVicye2ULLVJj3z12BnmUApTbtQ6mF2cXNteOqAW3bIvGaibibZjmwNPasY8DI2FPkicE8HPWUeHX1QFY2SZzw.jpg)
/hVGFYVicye2ULLVJj3z12BnmUApTbtQ6mpWzEbpianc9TkhVKKq3IZVz10rgiaM4yYAFNRTzZ1dyoRiaspTgax4zOw.jpg)
/hVGFYVicye2ULLVJj3z12BnmUApTbtQ6mIw0sKnaZMJEUyLH9XN2xyWfSEcrJiaNqkRoIK9IhqhXPzrZiblJhjMhw.jpg)
/hVGFYVicye2ULLVJj3z12BnmUApTbtQ6m8TAEmiavItvknxicAy3ianG6dl3LTibogeR21co0ybDXdc36TkAeWd5pgQ.jpg)
/hVGFYVicye2ULLVJj3z12BnmUApTbtQ6mLhhxYOOp6y2PNbEhFCjkibkQsPvqoE6BpGBlpRuFSErVpsoDGe9a8gg.jpg)
/hVGFYVicye2ULLVJj3z12BnmUApTbtQ6myU693Up26wKCRwfBNB1uzdaia2Bnt6DDlfiaCYuYQR8QeEh06aNCjGOg.jpg)
/hVGFYVicye2ULLVJj3z12BnmUApTbtQ6m3FDh8R7WfknQkzwazL8lvt5CKCwicwEIcYo81j6LaZIuFYnDUicRaDSg.jpg)
/hVGFYVicye2ULLVJj3z12BnmUApTbtQ6mp1rKa0U643knHHGR1CCn2PCqRVl3toVkySnRTbibygRlZDiaXL5zLoUA.jpg)
/hVGFYVicye2ULLVJj3z12BnmUApTbtQ6mbmM43HysXvB2F1ePgdsCiazpyhicysap5S6XshBibROkNXCnFgrdf4vBA.jpg)
/hVGFYVicye2ULLVJj3z12BnmUApTbtQ6mfm3rjmhdosK9FZsxufsK7HEXoa7Bpl8hJCYC0GSF8ZkANJFOcXezQw.jpg)
/hVGFYVicye2ULLVJj3z12BnmUApTbtQ6mutroEev9k5Qr6tlfIMVoBc7rh971MS3XhxYRgOfctBMdxoV2Ab8uTQ.jpg)
/hVGFYVicye2ULLVJj3z12BnmUApTbtQ6mgnrajMbDOUJdVzojLn56Dfn7MqiaWfZfvX98a0uT6JSy0u6iakduK50w.jpg)
/hVGFYVicye2ULLVJj3z12BnmUApTbtQ6mIUyyQTibshzBzIicdd1muvktt0LMoiaNbBJFNFxicibKHhQDbgEhszyk1Lw.jpg)
/hVGFYVicye2ULLVJj3z12BnmUApTbtQ6mW30CywyuFx0c8Brb90YrxFvgpGSyresetVmu3PG2nTdERYuVgpj87w.jpg)
/hVGFYVicye2ULLVJj3z12BnmUApTbtQ6mUEc80gPurfznUxRoVxkU8TnPGufbZRZE0WqgywOLGWIicvqacicibrW4g.jpg)
/hVGFYVicye2ULLVJj3z12BnmUApTbtQ6mxWRricNfic3fjyOo7syF65zPhIiaia0MtVs2k6LtVJKIQ9gcumTiccoTeFg.jpg)
/hVGFYVicye2ULLVJj3z12BnmUApTbtQ6m2OanZp6hOdhsHIwsNakQ1fg1pN5nzhV01gpN6NVKWETVLUZRkfIa3w.jpg)
/hVGFYVicye2ULLVJj3z12BnmUApTbtQ6mO5Voqr6HGmBKPS08xicR6U4ZWMxPRp5hnxib3ZYTWU7MbNzVnA73lVTA.jpg)
/hVGFYVicye2ULLVJj3z12BnmUApTbtQ6m7pibel4ssIoDKP9oj1rHGSePpA5tfsRREaG1Yp6ibGtNGGGkNWbByF1w.jpg)
/hVGFYVicye2ULLVJj3z12BnmUApTbtQ6mbzlic1RxVyyIdNyGWLoTbo514NGtg71ypa6k0Vdk2eBt1aFYtPWWg0w.jpg)
/hVGFYVicye2ULLVJj3z12BnmUApTbtQ6mZbjIHy9P8LYPdB6ksyUqYMXbCE43JX5nVgAQiaCInW6mpzOt9jlSmww.jpg)
/hVGFYVicye2ULLVJj3z12BnmUApTbtQ6mpncQRicsSMCP2fk2M84Kn6NS4mLZA37iccA7WpvbasAiaBvIKkyEBoZEQ.jpg)
/hVGFYVicye2ULLVJj3z12BnmUApTbtQ6m9OibsRwjTocaQHa8DTicHPROzrSVDZ51TN6vYQEX7Wu2FKNWp4pFa39A.jpg)
/hVGFYVicye2ULLVJj3z12BnmUApTbtQ6mkMicQnBVwzu9hbrsrqN8S3mCZLFr6JFJ0QOyAVQ7zgj2593dPrJCM3Q.jpg)
/hVGFYVicye2ULLVJj3z12BnmUApTbtQ6mjep8psj6xC7FhYddVKpmpOynY1cic535vHUn0ic6GZpEmE8g89ZgBaQw.jpg)
/hVGFYVicye2ULLVJj3z12BnmUApTbtQ6mgXicwUiaAkZAiabX7mx6icP8Nfticv6KNyiaSIVkVRv1SJ7Pqe1MDbR1myng.jpg)
/hVGFYVicye2ULLVJj3z12BnmUApTbtQ6myH8pUcqxzicnX9Zpo8hw6fcPDcr4PryowIKp93ftl7hnTibMniaYfvoicg.jpg)
/hVGFYVicye2ULLVJj3z12BnmUApTbtQ6moWvm87lria0yeEIPzQG5g8hd5xccONE451rlxGgLQEZQt8apicolicuiag.jpg)
/hVGFYVicye2ULLVJj3z12BnmUApTbtQ6mjibOiaOJVbb6AxAbcaianlb4HyiaL6IKMeMekEdK8wCfTVB5q3pkbZNibcA.jpg)
/hVGFYVicye2ULLVJj3z12BnmUApTbtQ6mAXbkOLx13pj2UnmGbkgtdvSGDwuiccHboVJ8hrSVVh7tic84Hjia3dpIQ.jpg)
/hVGFYVicye2ULLVJj3z12BnmUApTbtQ6mSCGFB9ENLmAB1d7ttibicVibezlxZ9EI1AT5HOkgT87Zx3vAyUibFAWAeg.jpg)
/hVGFYVicye2ULLVJj3z12BnmUApTbtQ6muhzaL7icfOAkLALZoTcfibmS0guYNCh8geHtvtDnOibSJ8WYLAWJKjIJg.jpg)
/hVGFYVicye2ULLVJj3z12BnmUApTbtQ6mFFLSM8k7A8FMSHiaMictvAictsppq8D1rjabOOHFSSmObantJ1dk1Elog.jpg)
/hVGFYVicye2ULLVJj3z12BnmUApTbtQ6mLjdDUgknVVlEC2xlJr639HibQ6ooibSYDsHicM6tgevjkg9WLlUbOE6Rw.jpg)
/hVGFYVicye2ULLVJj3z12BnmUApTbtQ6mRNlWMYxia7u3ow2bpjgoh9KJh6NBSCKGKZKpobENPVmXyhMIoUa2Myg.jpg)
/hVGFYVicye2ULLVJj3z12BnmUApTbtQ6m2qSo75kntOm560sDDQeeq3vz1kvo33zULjGiaicCJ4TxAbmYUMBbJfibg.jpg)
岁友遥皓-沃阁系列度假屋·D户型/hVGFYVicye2ULLVJj3z12BnmUApTbtQ6mqibndgia2nSichkvG1X47pribic5uRughOibYbNOgtBGYOxpmWocnsJpD9ow.jpg)
/hVGFYVicye2ULLVJj3z12BnmUApTbtQ6mgiakiaOgvCLvSgaccQNKfKcwZbKs1UH90HiaLkmFSnauibYgO4fPibYhCmQ.jpg)
/hVGFYVicye2ULLVJj3z12BnmUApTbtQ6mNHRPmLicvR0H0QIhvicVzpbedaVeg9t068yJIwXq9EwuuiaUYxbXM4oUQ.jpg)
/hVGFYVicye2ULLVJj3z12BnmUApTbtQ6mSKkgtxgYf0NcicD67eWJibic2kmmzZlmDEQWWSCGYO8dliazWHPrHbWakA.jpg)
/hVGFYVicye2ULLVJj3z12BnmUApTbtQ6mibzun5DhC9c3Zc5iayzI9TMdA1iaicKVLHWL2EnzCV7jomtU3XMySbhY5g.jpg)
/hVGFYVicye2ULLVJj3z12BnmUApTbtQ6m7DnCCyNzEGAdiao79ib1DCmVCS40SicQeFd6cF4XGq8to7wz7XK8OAtBQ.jpg)
岁友崖居系列度假屋·A户型/hVGFYVicye2ULLVJj3z12BnmUApTbtQ6morCHroiaTMMAj3FPTzKKC4dIhlpgAsw2icrSic5h60B4AbiaaAL1JK3W2Q.jpg)
/hVGFYVicye2ULLVJj3z12BnmUApTbtQ6mGgwxNrf13FVqArftp7u8ygfrgVia6qxPAIOfIicAclIN97OBFU0G8vzg.jpg)
/hVGFYVicye2ULLVJj3z12BnmUApTbtQ6myAd6zf42v2Nl30GU5CK3ef9iaaY0ezyXwh4kicPOqqnqtabR2PStSnIw.jpg)
/hVGFYVicye2ULLVJj3z12BnmUApTbtQ6mAfDiaibSXfMAfLLib1UnnRI2KV7CTia5mcKthXcZ6KWQGtp0H2oIE9IOoQ.jpg)
/hVGFYVicye2ULLVJj3z12BnmUApTbtQ6mAreMicJRO2xJPYNomdRd6I3zTo9jsC0fyyxGGaFGic4TsowgvNUBAZJA.jpg)
/hVGFYVicye2ULLVJj3z12BnmUApTbtQ6micqeuAoXF2Engcdjw6K7HibcEZzpqAHrBtZOtS5CG7D7TdnF2icpQJW8Q.jpg)
/hVGFYVicye2ULLVJj3z12BnmUApTbtQ6m0jukL8l62hs9sf7zoOkU7gd9tia7tL3BZoyQa3QWkHicpQN0GecOvlWA.jpg)
/hVGFYVicye2ULLVJj3z12BnmUApTbtQ6mH99oWXq1Qdm8oOkkmjF1F2GxMvKyibsTsZqHxG0T6nxia0BJuYmbIv6w.jpg)
/hVGFYVicye2ULLVJj3z12BnmUApTbtQ6mkwmp4FWriaB2fWmPTLhTVjYol9stAIJNO8qbNnv7iagFWDLcLzmXkcFw.jpg)
/hVGFYVicye2ULLVJj3z12BnmUApTbtQ6miaTPiaCVE1sfjb09v23ILF7cN2ibKuEbs4NL1Uy1YaicctxGU2E7GtJrLA.jpg)
/hVGFYVicye2ULLVJj3z12BnmUApTbtQ6mwJC9lIkqr9LKS8y9G4o6SaA5kStO15libibCDz9mK2ibDn9Yh85LWdDJw.jpg)
/hVGFYVicye2ULLVJj3z12BnmUApTbtQ6m1SBArndhUmRKDY92f5p2HQlB6CjLQpbvlrwW4oPficmR6AicFtEjaXJA.jpg)
/hVGFYVicye2ULLVJj3z12BnmUApTbtQ6mkRKDNYal5HZGBMJKCVR8EXBcVwIyR5hp0BT6drdSvHchWwmK3DpotA.jpg)
/hVGFYVicye2ULLVJj3z12BnmUApTbtQ6mRL2TlDqKuBzymGfb10raZATR31rxuXbCU3KSUTvnwnJ7UQmicFxt2Qg.jpg)
/hVGFYVicye2ULLVJj3z12BnmUApTbtQ6miaaHrqdWm9colzC5DPLcF5kVEnic9icNRTln6DSHTx6eSe8pY2LycUO5Q.jpg)
/hVGFYVicye2ULLVJj3z12BnmUApTbtQ6mXiayaTE6uyssGZ3HqcdLazLia61SBevVxH8vtdK7o7aOtPicdibHsLYQpg.jpg)
/hVGFYVicye2ULLVJj3z12BnmUApTbtQ6mf9F4C9sibq4ib42Vh5FLa1QibXDxRVKm5kXljBIwFpmaoPd24quzleEng.jpg)
/hVGFYVicye2ULLVJj3z12BnmUApTbtQ6myMkicvA4Ijr8VicH5dgYibZ7cCGQW1hObWaZS8rYRZY9xlFo9kiayLPN1Q.jpg)
/hVGFYVicye2ULLVJj3z12BnmUApTbtQ6mDXriaMovvZpZD01PQe5DLaiaUvY1qtqp81icGibpicoEglrRsnHXhGQsDvg.jpg)
/hVGFYVicye2ULLVJj3z12BnmUApTbtQ6m00vPqozzqicSuCubPZ5kORnWgI8KJRVRu1QKNSmZibLNPQEy4ibuP6I1g.jpg)
/hVGFYVicye2ULLVJj3z12BnmUApTbtQ6mIrcAnyNTCezN7EFs5dtp12SianiaBp30990EnPS2cCzGP1jkSOsicO38g.jpg)
/hVGFYVicye2ULLVJj3z12BnmUApTbtQ6mj17EhVynSx89kVpl9ZbAh6LIF1icHbXtm4ajLkJgiatl0mksbN8sKoiaQ.jpg)
/hVGFYVicye2ULLVJj3z12BnmUApTbtQ6mkgwPYlwUDdqzgBf21dJjgCZKYDAe6aup0icLgWN7MSnGu6MGl3KucUA.jpg)
/hVGFYVicye2ULLVJj3z12BnmUApTbtQ6mUia780Nd0v27PqCxCCiaTjiacsqHylmbQ7w1icW97PoicRhA8icwelkWU7sQ.jpg)
/hVGFYVicye2ULLVJj3z12BnmUApTbtQ6m6OticaCLnvzdBcZ7wQYJVZcdIDUayG56PmNUcJTjg6hHLiaicHCFiapLibg.jpg)
/hVGFYVicye2ULLVJj3z12BnmUApTbtQ6moGA1eluyNwRwXdTqZAKLQpX4g47D86kjnIgUy5oSN3EptZpqKlvyuQ.jpg)
/hVGFYVicye2ULLVJj3z12BnmUApTbtQ6mOhMsZF1VLc6tklKJMLSbyvzzcFLzsg6c5Veoiblr0jVaiaMheBkN73yw.jpg)
/hVGFYVicye2ULLVJj3z12BnmUApTbtQ6mpibTSUT1osdibtWMIfXaGNpeWAXU5eNTPxYUHdVgseGPBeic1fw7rhicNg.jpg)
/hVGFYVicye2ULLVJj3z12BnmUApTbtQ6mX01vicOV9xCdA5fDNuSo6zp69LUE9dBLh6mdxeQTK8dcRskRVItcYiaQ.jpg)
/hVGFYVicye2ULLVJj3z12BnmUApTbtQ6m4nUS3xk8xf3rWRJCeUm1mMPsYgHAtaqvN0ewjp2VGm55sxYRFicS1MQ.jpg)
/hVGFYVicye2ULLVJj3z12BnmUApTbtQ6mpm8XB95JUl8Xm3ZWwKbgAQBgibeXkK8ZtntibzQ2METkZZiaJcITenKAg.jpg)
/hVGFYVicye2ULLVJj3z12BnmUApTbtQ6mGfIJtx7lTWZiaQlVZM4qvJhciauzuhb6zAhvKsYKCSqX8uNhBZaDkPOA.jpg)
/hVGFYVicye2ULLVJj3z12BnmUApTbtQ6mFlNzVwt48TcVG1aMx5BNSxJLHYtJvuEd61yjtjZVVTXZQQMEibdoN7g.jpg)
/hVGFYVicye2ULLVJj3z12BnmUApTbtQ6mbqibaNyTppx3EQ3Sp7CSRRdpLWly5gvqjicPqOuQQ2srs9lLeOe1sfbw.jpg)
/hVGFYVicye2ULLVJj3z12BnmUApTbtQ6mBiaEgwexrq7cOtVYDh6uKGGv6meVaDRRMF9TARTm6Q1Jd4GTFaVbMfw.jpg)
/hVGFYVicye2ULLVJj3z12BnmUApTbtQ6mvChDVmtWQMwgYML12qdUIWuaffENzUnVnB86eoEjY0mtfUKnfP2BuQ.jpg)
/hVGFYVicye2ULLVJj3z12BnmUApTbtQ6mlRyGzEsA9FiaGF48AkzPI4d66RrhUw6nT4kcYqkVHWG6dX4flJBwruQ.jpg)
/hVGFYVicye2ULLVJj3z12BnmUApTbtQ6mSTqpYfGfqSoyDBgvUzKRRjTsbpv957vicmpYib9adDdLkiaCAx6bKEQCw.jpg)
/hVGFYVicye2ULLVJj3z12BnmUApTbtQ6m34Qslib0GBgA3maBaAgVIrLHnNF0VySPQF5B0pCbOR5ylsKj3u5Xkvw.jpg)
/hVGFYVicye2ULLVJj3z12BnmUApTbtQ6mQYniaibHQCdYI3oN6Y14qwF5MhByBJaLuE9UVda4AmV1ByKSX7ujjeYQ.jpg)
/hVGFYVicye2ULLVJj3z12BnmUApTbtQ6mGwKEdrvQYkLUHLgoOtatI0SSe3od7HRRcQZP5UWxx30GScR3yySdmA.jpg)
/hVGFYVicye2ULLVJj3z12BnmUApTbtQ6mwfSI8lVibkwYXXibuib94j82icOSu6RT1QFKicop2LORHjrUt33s5kqiahQg.jpg)
/hVGFYVicye2ULLVJj3z12BnmUApTbtQ6madibesNnoM1ydh55TXfP5qZXk9IZOmCicCp0xSR1XDcgPl671HNwqf4A.jpg)
/hVGFYVicye2ULLVJj3z12BnmUApTbtQ6mwnxyAPFhxSgCLciaKrmDHrfWQRxAwj4gZVckrRhAldgzhsKTONHia1VQ.jpg)
/hVGFYVicye2ULLVJj3z12BnmUApTbtQ6mZPcgmp6dq7G4WEsKuibKYz2AtRriaEk38cbJyaBvoUPgpfoofoP8nLkw.jpg)
/hVGFYVicye2ULLVJj3z12BnmUApTbtQ6mSMdTCQ9St5rXWxpNBVAz7GOaAISKLUfpia2LiabqW2fdrH5OUaTmibicbg.jpg)
/hVGFYVicye2ULLVJj3z12BnmUApTbtQ6mlcysziaJYHDyK7hfIrBDllmoZ9u6eWrmgjM5r5y2cEo41wicicGHSEMPw.jpg)
/hVGFYVicye2ULLVJj3z12BnmUApTbtQ6mrN1Mby8SZEx22QWibibD7E6biaic5FHicZZalPVh1kFZARhsEJMUAqXbHJQ.jpg)
/hVGFYVicye2ULLVJj3z12BnmUApTbtQ6mJzpDPqMEseV2jrXeKVWx2iaiaJuBON6ibZB0gbGmgUgwKa8gTHHBUNlfQ.jpg)
/hVGFYVicye2ULLVJj3z12BnmUApTbtQ6mpu8eJczJmrD02dbENL8UoJZfrq40xMclBrbXyxvYzLHiax9wDSktzMQ.jpg)
/hVGFYVicye2ULLVJj3z12BnmUApTbtQ6mF6BeZ6cMoD9qkvBeSUYRCS3yuP15COVQUmYphicRcXYIqpL2vVCxpyQ.jpg)
/hVGFYVicye2ULLVJj3z12BnmUApTbtQ6m76BC1JL1YBkrJ0BticNskIibZwHuQibf50wTEicC9d5oHngkmtVfsXRhow.jpg)
/hVGFYVicye2ULLVJj3z12BnmUApTbtQ6mBgggpYsfoibYWGNfrEtUFqTZanIfPhiavYkHFw9gQFpys70HajWleDEA.jpg)
/hVGFYVicye2ULLVJj3z12BnmUApTbtQ6m0Y13icFTciaP5TKFYbnzam4PhN5gkIY3CODvBuoiczuI7Scmp2j52R3mg.jpg)
/hVGFYVicye2ULLVJj3z12BnmUApTbtQ6mdmkic5XxUhoME8OQJGRfePwKiafyl2EDVzeicEsUAkmYVicNdQL9CjEtHA.jpg)
/hVGFYVicye2ULLVJj3z12BnmUApTbtQ6mZLmlGNaRibaDnjUicZoCicV80G7PJIl1Y4hf23jXeiaWCq0PQicbdf6yic5Q.jpg)
/hVGFYVicye2ULLVJj3z12BnmUApTbtQ6mdicduEBTBLFPFAoJHdFKERw669dwvicell3wkDamNPhVTaibtnMg9m4GA.jpg)
/hVGFYVicye2ULLVJj3z12BnmUApTbtQ6mvZ6JkKZxwSmcCtXbYiaBxa6Y0owgSfqMSfKd9ic0ZADp9yQl2b0sfeJA.jpg)
/hVGFYVicye2WE2a0dTKibF1VfH18WzMLSwmwFcibqmTKFibvnREzjq0AIr7whcceUQdc1Yicj5UlweMjqicLRbibZ2zNQ.jpg)
欢迎进入岁友空间微店商城,这里不仅有客户、文旅项目相关的《旅游快装建筑产品画册》,而且还有设计师、民宿主喜欢的新微设计"最美系列"9本丛书,分别是:《禅居》、《中式居住》、《私家小院》、《最美庭院》、《最美景观》、《最美酒店》、《最美民宿 》第一部、《最美民宿 》第二部、《最美民宿 》第三部,每一部书都非常受大家的欢迎,涵盖了目前中国最知名的民宿!
/hVGFYVicye2WE2a0dTKibF1VfH18WzMLSwNhkIYLElWpdI7FwZ6yyxHLdkUMeHJFuvutmYicibjOFsHyCZKR8icKleA.jpg)
《岁友空间微店》
/hVGFYVicye2WE2a0dTKibF1VfH18WzMLSwLVMFyzjq8U8gibtMSVlX2bTEYomlDdUVEAIBLxiacMXdZiaTic3jsRInVA.jpg)

