140㎡三室两厅的简约美宅,多功能客厅,幸福感爆棚
By Anonymous (not verified)

一 起 设 计 一 起 品 味 生 活

本案位于西安,原户型是一个四室两厅两卫一厨的房子,面积为140㎡,常住人口为夫妻二人和上学的儿子,希冀新家好看好用,彼此陪伴长情。

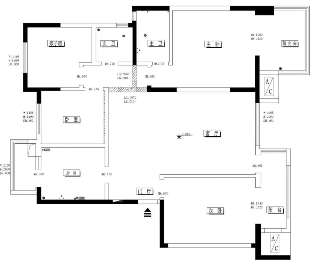
原始平面图
原餐厅处于过道位置,不能满足六人餐桌布置;储物空间少,不能有效合理收纳;次卫面积小,不能满足干湿分离的功能;厨房为两个一字型,操作不连贯,且与晾晒衣物功能区混为一体。
在空间规划上,设计者的一切都基于对生活的理解家庭伦理和人情的温度。继而结合到居住环境和空间格局之中,探索空间秩序和几何比例,使其呈现出简洁自然的元素,予居住者一种真正的生活阐述。

平面方案图
将原始厨房面积缩小变更为衣帽间,与洗衣阳台连通,解决储衣与洗衣一体化问题,入户左手边的生活阳台设置入户更衣储物功能。原始客厅变成公共活动区,满足亲子互动和临时住宿功能。
原餐厅侧墙拆除后移,满足六人餐桌和派对会友应有的开放空间。次卫生间拆除扩张马桶采用挂墙式,解决卫生死角,淋浴区实现干湿分离功能。主卧通过合理排布实现休息、洗浴、休闲办公等功能。

地面为意大利IMOLA瓷砖INEDITO系列

经设计师深思熟虑,客厅功能性巧妙呈现,兼具观影,阅读,书籍艺术品储存等多样性功效,用最简洁设计手法实现空间的可静可动。
阳光俏皮的轻洒入屋,一本好书伴着墨香,直至微风拂过轻纱,才恍觉,窝在沙发便可收获一个惬意流淌的午后休闲时光。



墙面为意大利IMOLA瓷砖 CENTO PER CENTO系列
如果可以,我只要一杯清水、一片面包、一枝花,如果再奢侈些,我希望,水是你倒的,面包是你切的,花是你送的,挚爱身边人,日子便如诗般缱绻绵延。
淡雅蓝衬着高级棕,配着同色系延伸感几何装饰画,一个温馨调十足的六人餐厅完美呈现,链接U字型厨房,合理的功能动线让生活舒适度提升。



打开门,最舒适的距离观影,关上门,席地而坐品茗畅聊,亦或全家一起陪儿子练习跆拳道,做自己喜欢的事情,各自欢喜却相依相偎,有你有我,一切都刚刚好,点点滴滴,汇聚成幸福烙印,永留心底柔软岁月。

地面为意大利IMOLA瓷砖INEDITO系列

高级灰与肉桂粉的碰撞,让主卧整体呈现清新脱俗之感,宝石绿的点缀,让淡雅色系的组合释放出一种舒适自由之感,无拘无束张弛有度。

墙面为意大利IMOLA瓷砖ANTARES系列


意大利IMOLA瓷砖XENO系列
可静可动,可开可合,人与人,彼此独立又陪伴。人与空间,相互成就又融合。
浮世喧嚣,或许我们需要一处简单的美好,可以卸下各种社会角色,让所有浮华都变成清欢。家,就是回归,安放灵魂。

项目名称:有你就好
项目面积:140㎡ 空间性质:住宅 设 计 师:肖琳 项目地点:西安 摄 影 师:雁青 主材配合:意大利IMOLA陶瓷、楷模定制、诺贝尼木制、企一照明
关于设计师
设计师肖琳 从业年限:18年 设计理念:在设计过程中坚持以人为本的理念,用心营造灵性空间,用最少的语言表达最深厚的情感。 擅长设计风格:新中式、现代简约、欧式、地中海。




原餐厅侧墙拆除后移,满足六人餐桌和派对会友应有的开放空间。次卫生间拆除扩张马桶采用挂墙式,解决卫生死角,淋浴区实现干湿分离功能。主卧通过合理排布实现休息、洗浴、休闲办公等功能。









地面为意大利IMOLA瓷砖INEDITO系列


墙面为意大利IMOLA瓷砖ANTARES系列



合作联系 广告合作:QQ 2376181903 咨询&找设计师:微信 zhuke345 作品投稿邮箱:578809721@qq.com


