90㎡老房翻新改造怎么设计 这样设计收纳增加30㎡

两人请来设计师呆呆Gina,帮他们对空间进行重新调整规划,虽然看上去改动颇小,但其中对于微尺寸的调整,起到了关键作用。

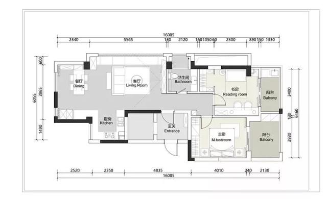
改造重点:
牺牲掉北面一个次卧,做成开敞的客餐厨一体空间。
卫生间墙体向南扩展48cm,台盆马桶的布局由排列变成对象,中间留出1.6m的空间。
书房墙朝主卧方向移动60cm,向阳台扩大60cm,整体更加宽敞,大长书桌满足双人办公需要。
全屋收纳面积约为12.77㎡,体积约占30m³左右,收纳布局合理,空间利用率高,并留出了50%的余量,满足将来的收纳需要。
Before
After
收纳空间示意
位置:杭州
户型:三室一厅
使用面积:89㎡
设计师:呆呆Gina - TK设计&之和家居
屋主:成哥Victor
费用:45万
客厅
在将北面的次卧打通之后,整体客厅视野大为宽阔,一个89㎡的房子,也有了那么一丝豪宅的意思。
隔热透光的智能电动蜂窝帘,让空间更有活力,灰色基础款的沙发,用了聚酯纤维布,原木铁脚小茶几,自然的棉质地毯,充满细腻的质感。


柜体用了白色的亚克力门板和桧木木饰面,视觉效果通透整洁,纹理自然而然。
电视背景墙半藏半露,杂物通通不见,上下一宽一窄两条收纳柜,不但不感到突兀,反而出现了很好的装饰效果。
飘窗台面做了凹槽,将软垫嵌入进去,减少了不必要的凸起物,同时保证坐感舒适。
软垫的颜色和沙发互为呼应,观感相当清爽。
注意飘窗台面和电视墙的柜体结构穿插,整体简单纯粹,一气呵成,接口线整齐流畅,凸显出非常精致的工艺。
也是台式风格的一种明显体现。
酷酷的kaws公仔,屋主的私人收藏~
厨房
厨房开放式设计,600×1200的大理石纹瓷砖,让整体效果恢弘大气。
操作台是4cm厚的浅灰色台面,轻快有质感,门板同样沿用了客厅的纯白色。
北侧吧台兼具水吧的功能,在柱体和冰箱之间的空隙,设计师巧妙做进两块隔板,完美放置各类酒水,台面放上常用小家电如咖啡机、面包机等,满足日常的使用需求。

转角吧台也和餐厅完美契合为整体,又能满足餐边柜的用途。
餐厅
餐厅这里是原先的北面小卧室,沿用了白色亚克力柜门,餐桌紧挨餐边柜,空间利用率很高。
1.8米的黑胡桃木餐桌,涂上一层木蜡油,具有与生俱来的高级气质,同时很环保。
黑色的多头灯增添了十足的现代感。
纯铜灯头作为点缀色,成为一抹亮眼的轻奢感。

卫生间
卫生间面积并不大,屋主和设计师全力施展空间放大术:
淋浴区狭小,用浴帘取代了淋浴房,避免空间出现挤压局促。
大理石地面配大理石纹砖,统一材质,减少不必要的变化。
洁白的一体台盆 + 整面墙大镜子,空间至少显大1倍,大胆有气势。
建筑结构的凹槽处,做了全铜金属架,空间利用得恰到好处。
家有小卫生间的朋友们还不赶紧学起来~

卧室
主卧设计了深灰色背景墙,这样避免墙面出现一块凸出的床头,能够最大限度地保持“一体式”的流畅感。
房间中的重颜色也很统一:背景墙的硬包,遮光窗帘,磨砂黑的号角壁灯,以及深灰色烤漆的床头柜。
整体黑白灰的简约爽朗,配上质朴自然的原色木饰面,典型的台式味道,非常浓郁的现代品质感。
主卧空调的回风口做了黑色的喷漆处理,从细节上保证色调的和谐。
绗纹棉的盖被,烟紫色的四件套,观感和触感同样很高级。
柜体中间做了开放柜,满足空调排风的“侧出下回”,同时又保证了整面衣柜的设计。
吊装的不锈钢衣架,挂上当天换下来的衣服或包包。
书房
住着两位设计师屋主,必然少不了足够大的办公空间,整张的大书桌能够摆下两台电脑。
除去办公功能之外,背后放了沙发床,方便客人临时借宿。
未来如果添了新成员,屋主打算把这个区域做成小孩床,到客厅沙发后面新增一个办公桌。

衣帽间
衣帽间设计到了书房里面,虽然空间不大,但屋主也计算了家里的所有衣物收纳需要,充分利用每一寸的功能,无论是冬天的大衣、棉被、行李箱等,都可以放得下。
阳台
主卧阳台整体呈现休闲的独家风。
地面做了防腐木和白沙石,由屋主自行DIY铺成,背景墙也用到了定制防腐木,右侧以木工板打底,不同层数的铺贴营造出了这样凹凸不平的层次感,然后贴上石皮。
走廊
走廊在原始户型的基础上,拓宽到1.2m,宽敞明亮,做了常闭状态的隐形门,避免进门就看到卫生间。
好啦,以上就是今天的台式风案例,
图片资料致谢设计师呆呆Gina,屋主成哥Victor

