100㎡Loft大改造,让空间不再抑郁
By Anonymous (not verified)
一 起 设 计 一 起 品 味 生 活 

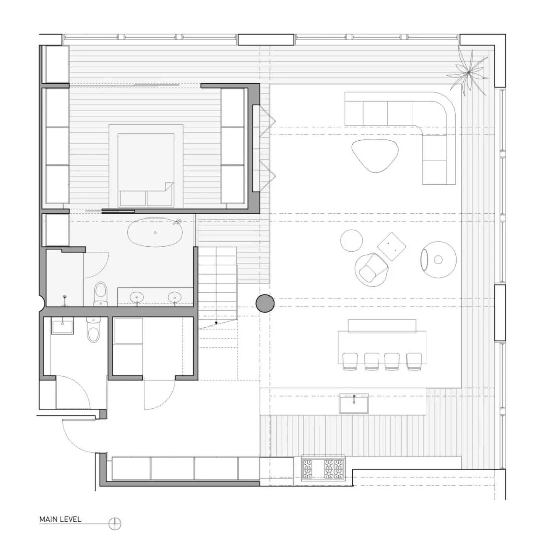
客厅 



厨房 



卧室 




卫生间 


细节 




项目信息 

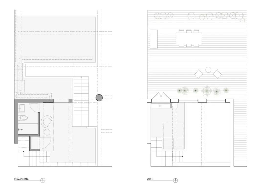
二层作为住户夫妇的办公室的备用卧室,拥有更为通透的空间感,与一层保持隔离却又相互连通,舒适度很高。 



合作联系 广告合作:QQ 2376181903 咨询&找设计师:微信 zhuke345
作品投稿邮箱:578809721@qq.com


本项目的前身是汽车组装厂,
因此这个巨大的外壳其实并不适用于住宅。
而这群建筑师们通过设计的奇思妙想,
创造出一个充满趣味性的居住空间。

Vladimir Radutny Architects设计的密歇根复式阁楼,位于芝加哥一栋有100年历史的建筑内。为了形成了低矮舒适的入口,建筑师设计了木质的“过渡区”结构,缓解了人们在进入大空间后潜在的压倒性感觉。


在起居室空间中,保留了原始的混凝土天花板、柱子和大窗户,提升了空间的开放感和清晰度。木质结构延伸到整个公寓中,用于连接生活空间,同时也为居住者提供了更多可以寄托情感的家具和装饰物,同时也衬托了家中种植的植物。




整个厨房被放置在一个木质平台上,设计师利用高度划分了空间。宽敞的窗户让居住者在每天准备餐点时,都可以欣赏到密歇根大道——芝加哥最具标志性的街道之一。





卧室被隐藏在一个被黑钢包裹的立方体中,通过隔离四周,可最有效地隔绝噪音、控制温度。黑色立方体还可以充当隐藏的储存空间,承担比如电视柜之类的许多用途,其金属外壳随着面板的打开可以改变功能,非常便利。





为了保证家居空间整体的简约感,洗衣机、电子产品和储物之类的便利设备,都位于内置柜子中,隐蔽地分散于整个空间中。



在二层阁楼中,使用了非常贴近原始状态的混凝土天花板,开放式的格局通往广阔的室外花园,人们在室内,可以直接欣赏到芝加哥美丽的天际线。










你想成为一个
不出门就能赚钱的自由撰稿人吗?
机会来了。

七夕鹊公开招聘啦,欢迎热爱家居设计的你做我们的自由撰稿人。
稿酬标准:
发表即付500元/篇;
24小时超过5万点击,1000元/篇;
24小时超过10万点击,5000元/篇。
有兴趣请加:微信号(qixique)


