阿里巴巴夫妇的220㎡度假大宅,靠山面湖,令人羡慕
By Anonymous (not verified)
这套别墅紧靠杭州的青山湖,地理位置和周边环境非常清新宜人。
业主夫妻都在阿里巴巴总部工作,到这里也很方便。目前这套房子用作休假使用,因此风格定位上确定为简洁度假风,改造后的院子也散发出十分休闲健康的气质。
疫情当前,这套大宅作为宅居隔离之用非常的惬意,也能缓解焦虑紧张的情绪。 玄关 

在玄关鞋柜的位置留空了一层,可以随手放置小物件儿。白色的定制柜子,让整个空间显得开阔,同时增加了收纳的空间。
客厅



电视墙是一大块木饰面,观感十分温暖。地面做了深色大理石和钢板空格组合的长条型台面,能够摆放许多设备。电线裸露有点多,可以考虑购买集线盒进行收纳。

餐厅和客厅之间做了一个吧台,既可以补充客厅的座位,又可以分割两个空间。吧台留出直饮水水槽,方便日常使用。错落的吊灯增添线条感。
厨房&洗衣房

U型厨房设计,木色橱柜搭配小白砖,清新简约。

针对客户的实际需求,一楼卫生间的干区兼做洗衣房。洗衣机与烘干机搭配使用,台盆也采用了可以足够洗衣服的大尺寸,上方吊柜下面加了灯光和挂衣杆。
餐厅 

黑色的餐桌搭配灰色的椅子,尽显高级之感。餐厅的吊灯是整个设计过程中最后选配的,前期没有找到特别满意的单品,最终搭配这款黑色巴洛克风格的吊灯,增添一份浪漫的气息。

楼梯下做了个储物间的暗门,和厨房的移门门套联合一起。

卫生间

主卧卫生间选择灰黑色调瓷砖搭配白色浴室柜,营造低调内敛的感觉。

二楼外卫优先考虑了小朋友的喜好,使用了小白砖,十分清新。
卧室


靠近露台的一侧使用玻璃门搭配轻薄的窗帘,采光很棒。 
穿衣镜,小花地毯鲜亮活泼。

衣帽间是两头开门的格局。一侧和主卧连接,以灰色的玻璃移门作隔断;另一侧连接到一个小露台。
考虑到放置衣物的美观和实用性,衣帽间是开放设计,放弃了柜门,以轻纱作遮挡,视觉上轻柔不压抑。
书房

儿童房




走廊



庭院




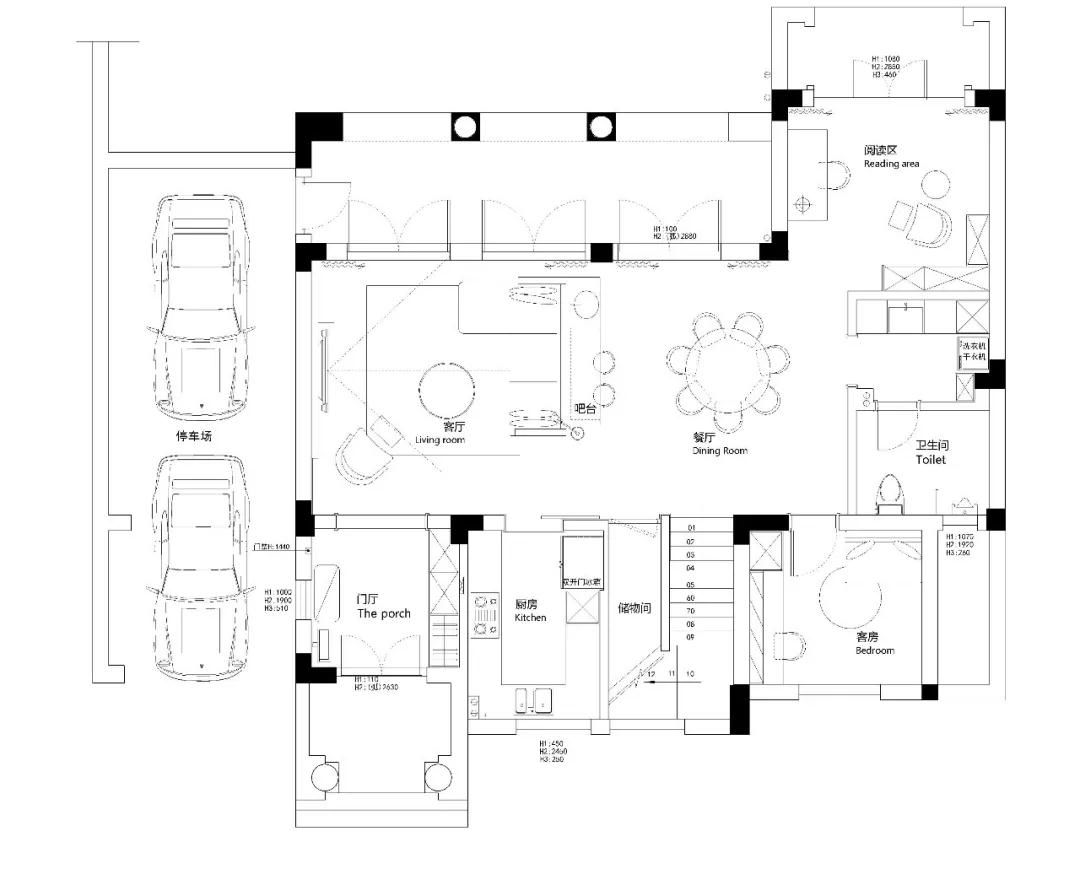
户型图


项目概况: 位置:青山湖红枫园 房屋面积:220平米 设计风格:休闲度假 装修花费:120万元 转载自:TK室内设计事务所,TK_design
案例图文来自 TK设计&之和家居


合作联系 广告合作:QQ 2376181903 咨询&找设计师:微信 zhuke345
作品投稿邮箱:578809721@qq.com

一 起 设 计
一 起 品 味 生 活



入门玄关,一侧是长凳和衣架,另一侧是整面衣帽柜。原木色的简洁家具,有一种淡然恬静的感觉,而且可以作为“消毒杀菌区”,阻断室外对室内造成的污染因素。



客厅用了浅色大体量沙发,可以满足多人观影。活泼的圆几便于移动和玩游戏,彩色的格纹地毯和靠包让米色的素雅空间多了一份活泼和俏皮。















木色与白色营造出自然清新的氛围,移门后是衣帽间。家具也以简约风格为主,体现主人淡然的心境。





定制的工作台与书架,大大增加了藏书空间,原木色台面与白色柜体,延续房间的整体风格。



阅读区,刷了一面黑板墙,便于小朋友写写画画。一旁的搁架可放置常看的书籍。


阅读区的单人棕黄色沙发,点亮了整体空间。




在二楼主卧和儿童房上方搭建出来的小阁楼,作为一小方活动区。整个楼梯和公共区域轨道都布置了感应灯。



花园是整个设计和施工过程中最期待的。以白色和木色为主,打造一种清幽之感,非常的文艺清新。

休闲平台的地面铺设了防腐木,无论是地面还是花池侧壁都嵌入了射灯,天色暗下来后,十分有氛围。






你想成为一个
不出门就能赚钱的自由撰稿人吗?
机会来了。

七夕鹊公开招聘啦,欢迎热爱家居设计的你做我们的自由撰稿人。
稿酬标准:
发表即付500元/篇;
24小时超过5万点击,1000元/篇;
24小时超过10万点击,5000元/篇。
有兴趣请加:微信号(qixique)


